In the early 1990s extensive construction was done in Choa Chu Kang, Hougang, Pasir Ris, Tampines, plus small additions in many other towns.
In the late 1990s three New Towns were started: Sembawang 1997, Sengkang 1997, Punggol 2000. Construction stopped for Tampines and Pasir Ris in 1995 (why?) but continued for Bukit Panjang, Choa Chu Kang, Hougang, Jurong East (Toh Guan Road), Jurong West (Pioneer area), Woodlands (Admiralty).
In mid-1990s majority of blocks range between 10-16 storeys, while blocks with household shelter built after 1998 range between 12-18 storeys, a small number of blocks have up to 30 storeys. Walk-up blocks almost disappeared. Unfortunately minimal distance between blocks was reduced to 18.3 metres (60 feet).
1990s was a decade of rapid development and innovation, raising the standard of living in public housing of Singapore to a level similar with private housing in other countries:
1992 – all blocks completed in 1992 have lifts stopping on every floor now and centralized refuse chutes (until 1993 some blocks have lift machine room at top floor so the flats at top floor do not have direct lift access).
1995 – introduction of yards for kitchens and by-panel main door.
1997 – introduction of household shelters and A/C ledges placed opposite of kitchen window, that double as second support for drying on bamboo poles.
2000 – first blocks competed in Punggol, a town built almost without corridor-facing flats (except 4 blocks and rental blocks built in 2010s) and green roofs on every MSCP.
2003 – last corridor-facing flats were completed (Sengkang blocks 207A-D).
1990s blocks are highly decorated and grouped in precints with distinctive styles, ground car parks were replaced by multi storey car parks, this allowed higher density, taller blocks, and more green space. All blocks are linked by covered walkways with car parks, bus stations and other facilities, so you can go anywhere regardless if the sun is too hot or is raining.
Since 1988 structural elements became thicker, 30 cm or more, rather than 20 cm in 1980s blocks, and more pillars per block. I do not know if this design is to withstand earthquakes.
Design & Build scheme was introduced in 1991, calling private architects to inject more variety into public housing designs (source: https://eresources.nlb.gov.sg/history/events/16832579-04f7-4578-bf4d-65bc2d55cf90), first project being at Tampines 230A-J (1992), featuring curved facades.
Design Plus followed in 1996.
Premium Apartments were introduced somewhere during 1990s, featuring better quality finishes, you get them in ready-to-move condition, with flooring, kitchen cabinets, built-in wardrobes? (compared with Standard Apartments where you get raw concrete waiting for your renovation).
Executive Condominium scheme was launched in 1995 (source: HDB Press Release 29 August 1995), subsidized private housing with facilities like private condos and same eligibility conditions like HDB (family nucleus, citizens and permanent residents, income ceiling). After 10 years since TOP date, all restrictions are lifted and even single foreigners can buy EC. See List of EC.
All premium contracts feature unique floor plan and corridor-facing flats are avoided. Since early 2000s standard contracts also became unique, putting the END to privacy issues of corridor-facing flats.
More and more land parcels were sold to private developers, making the percentage of population living in public housing to fall. Privatization of the former HUDC estates started in 1995 too.
The old HDB estates built in 1960s and 1970s suffered from dilapidated buildings, aging population and businesses moving out. On resale market Queenstown and Ang Mo Kio were cheaper than Pasir Ris, one of the cheapest towns today (source: analysis of Resale flat prices database). To prevent this, HDB launched Main Upgrading Programme in 1990 to improve pre-1980 estates, adding extra bathrooms for Standard flats, utility rooms, lifts that stop on every floor, redesigning facades for more modern look, building multi-storey car parks and converting surface car parks into green space, building covered walkways, etc. Interim Upgrading Programme was launched in 1993 for blocks built in 1980s, doing only small external upgrades.
Although small-scale redevelopment of old estates started in 1966, with demolition of single-storey artisans quarters, a massive demolition of 1-room HDB rental blocks occurred in 1988-1989 and continued into 1990s, it freed up land to build new blocks with 5-room and Executive units in mature estates like Bukit Merah, Queenstown and Toa Payoh. The HDB Floor Plans 1930-present is copyrighted by www.teoalida.com.
Selective En-bloc Redevelopment Scheme was announced in 1995 to demolish selected owner-occupied blocks built up to 1980 and rehouse the residents in new blocks built in nearby location, to maintain community. Usually low-rise blocks with large spaces between them are selected for SERS while dense and tall blocks are selected for upgrading. HDB do not give you a replacement flat automatically, they compensate you at market value, then you need to buy yourself a subsidized flat in replacement blocks which can be smaller or larger, and pay the difference with CPF. Since 2004 the residents can enjoy SERS benefits buying new flats anywhere instead of being limited to the designated replacement blocks. Redhill Close (built 1955) was the first upgraded blocks (MUP 1992) to be selected for SERS in 2011. See List of SERS sites.
HDB stopped deciding the prices of new apartments based on construction costs, instead they decided based on market prices. Prices of resale flats and new flats entered in a vicious circle, rising 50% in just 6 months of 1993 and tripled to 1996, then felt down 30% to 1998 and continued to fall in non-mature estates by 2006, while in mature towns they started rising in 2002, fueled by upgrading programmes and agents lying people that all old blocks will get SERS.
Pasir Ris blocks 601-615 (built 1993-1994)

Bishan neighborhood 2xx famous for roofs in various heights (built 1990-1991) / Jurong East – Toh Guan Road precinct (built 1996-1998)

Early 1990s floor plans (centralized refuse chute, no household shelter era)
1990s HDB flats provide high variety of layouts in various sizes: 4-Room Model A (100-108 sqm), 5-Room Improved (120-128 sqm), 5-Room Model A (133-137 sqm), Executive Apartment / Maisonette (142-150 sqm). Share of 5-Room and Executive flats increased, raising average size of new flats to over 120 square meters in 1991-1996 (even 130 sqm in 1994-1995 due to Jumbo converted blocks).
An experiment with 2-Room flats was done in 1994 (Pasir Ris block 142), having 2-room units on ground floor and 4-room on rest of floors.
1991-1996 block with 4-Room Model A (107 sqm) and 5-Room Improved (125 sqm), 4/5-room corner units also exists!

1994-1998 slab block with 4-Room Model A (100 sqm) and 5-Room Improved (120-123 sqm), some blocks have some smaller units named 4-Room Model A2 (90 sqm), some have different corners with 4-Room and 5-Room units, others have a wing with 2 units of 5-Room



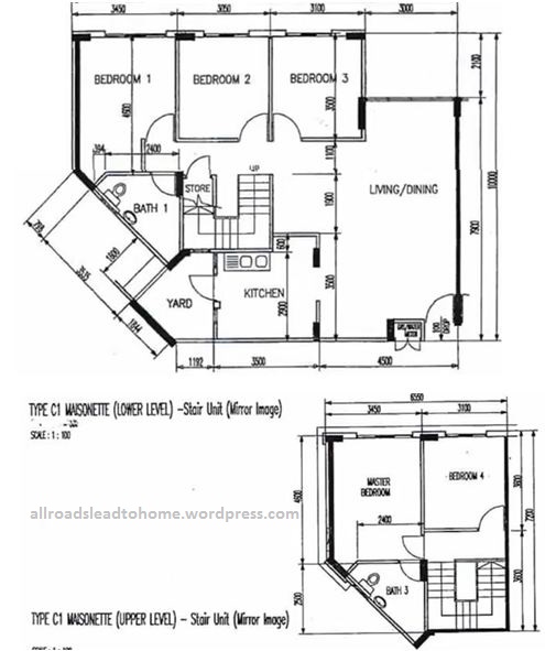
1991-1996 point block with Executive Apartment (144-147 sqm), some blocks are L-shaped with 4 units per floor (3 or 4 different layouts), or U-shaped with 5 units per floor, some are longer like slab blocks and include corridor units, some blocks are combined with Executive Maisonette
1994-1996 blocks provide service balcony for kitchen

1991-1996 point block with Executive Apartment (146 sqm), 4 units per floor, two 146 sqm layout and other two different kitchen shape
1991-1996 atrium block with Executive Apartment (143-146 sqm), 6 units per floor, four 146 sqm layout and two 143 sqm layout

Late 1990s floor plans (household shelter era) – First downsize of HDB flats
Another revolution is visible for the HDB flats completed since 1997: Block naming system (slab, point, atrium) has been abandoned. Flat naming system (Improved, Model A, etc) is no longer used in sale brochures, where a new naming system was introduced: Type A = 4-rm, Type B = 5-rm, Type C = Executive and the word Flat was replaced by Apartment. Resale transactions still show old flat type naming, and after 1998 all 4-rm are Model A and all 5-rm are Improved.
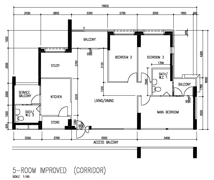
The flat sizes were standardized, slightly smaller: 4-Room (100 sqm), 5-Room (120 sqm), Executive (140 sqm). Percentage of EM was reduced compared with EA because of aging population who do not like stairs (source: Straits Times 1989) and the last maisonette was completed in 2000.
The 5-Room lost the study area, being just a 3-bedroom flat with larger living room. Executives are 3 bedrooms plus open study area that can be walled into a 4th bedroom. Average flat size 110 sqm.
A household shelter was provided in every flat, a store room with strengthened 30 cm walls and sealing door. Useless feature in my opinion, the shelter eats about 5 sqm, sometimes placed in middle of flat, hacking it is not allowed making floor plan less flexible (some exceptions in 2000s: all 1/2-rm rental blocks and some 2/3-rm sold blocks have a common storey shelter instead of household shelter inside flat).
1997-1999 block with 4-Room Model A (100 sqm), 5-Room Improved (120 sqm) and Executive Apartment (140 sqm), some blocks have 4-Room Model A2 (90 sqm)

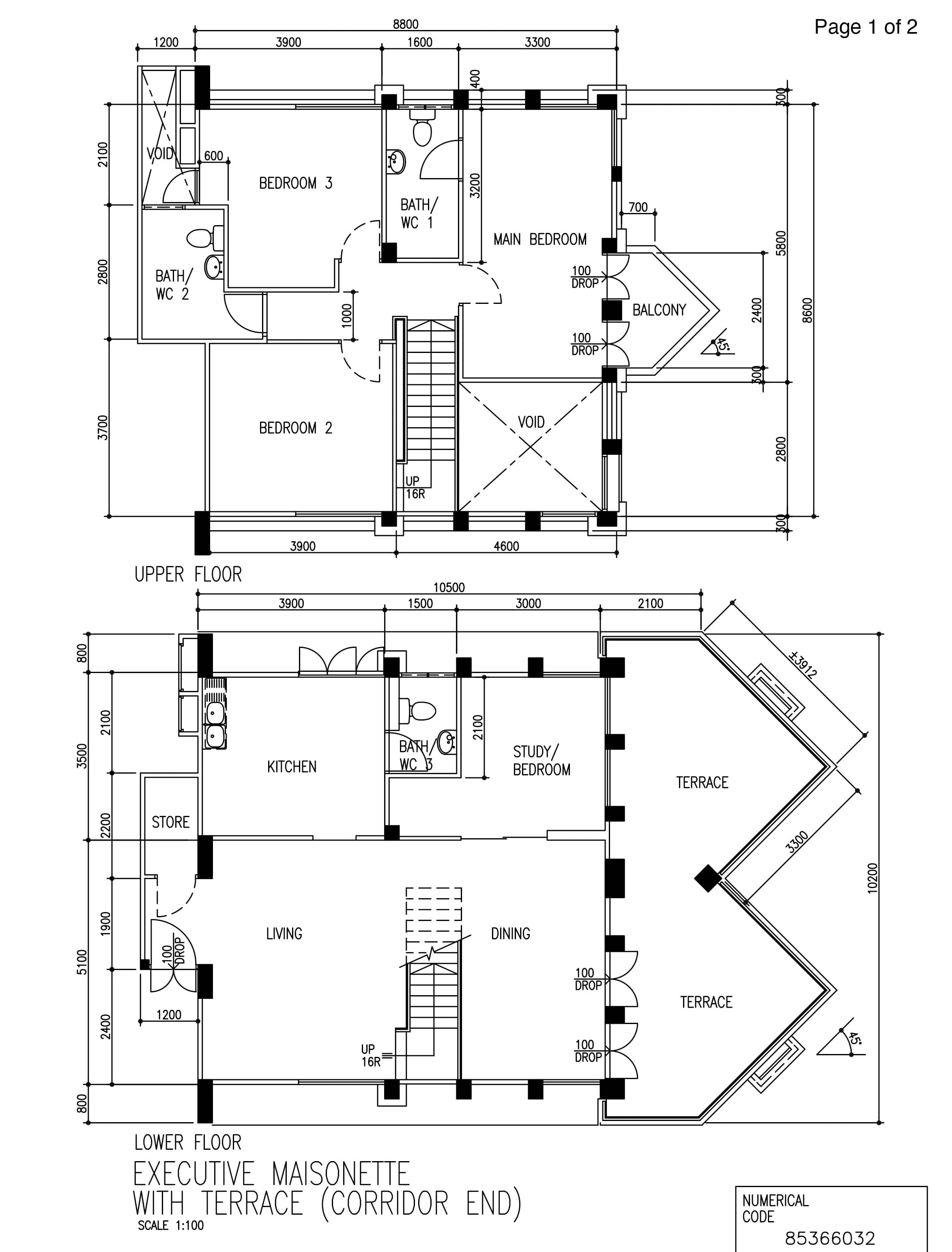
1997-1998 block with Executive Apartment (140 sqm) and Executive Maisonette (142 sqm).
Executive Maisonette with bomb shelter RARE, only 10 blocks!! (no floorplan found for EA pair)
Second downsize of HDB flats
All HDB flats completed since 2000 lost 10 sqm, their sizes being 4-Room (90 sqm), 5-Room (110 sqm), Executive (130 sqm, 125 sqm after 2003).
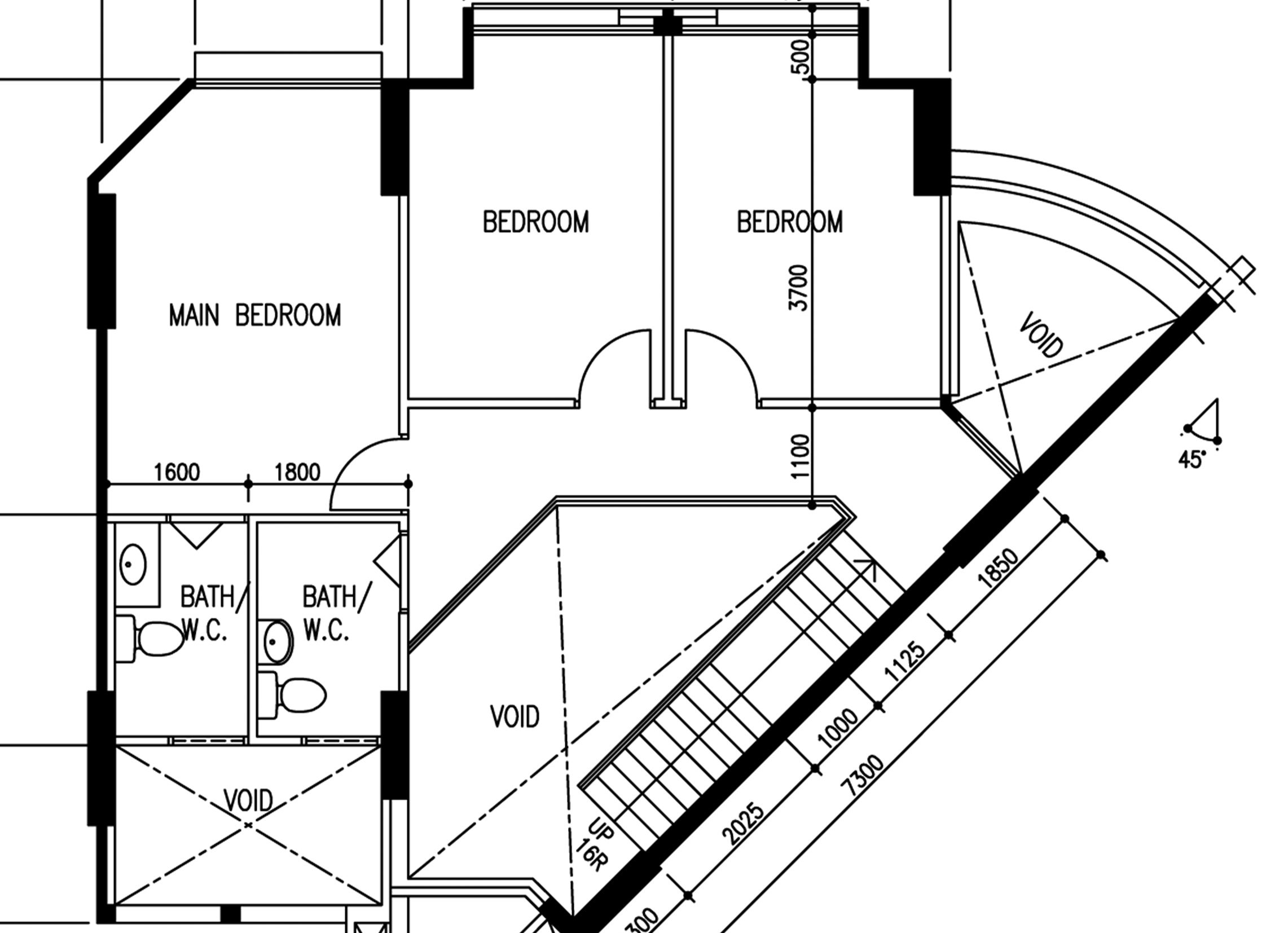
In attempt to reduce number of corridor-facing flats, the shape of blocks became complex, with many corners where 5-Room units are located. In 2002 and 2003 the number of 5-Room flats exceeded 4-Room, so the average flat size remained high as 105 sqm in 2000-2005.
1999-2003 block with 4-Room Model A (90 sqm), 5-Room Improved (110 sqm) and Executive Apartment (130 sqm in 1999-2001, 125 sqm in 2002-2003)

1990s rare HDB floor plans
UNIQUE, 1997 Premium contract Tampines blk 498 (atrium block) composed by 4-Room Model A (106 sqm), 5-Room Improved (124 sqm), Executive Apartment (143 sqm) and at top floor Executive Maisonette (147 sqm), they being the only HDB flats designated as 5-bedrooms (other HDB flats may have 4 bedrooms + family which can be turned in 5 bedrooms too)

UNIQUE Bedok blk 140 (1998) with 5-Room Improved (121 sqm), 3 balconies! 
UNIQUE premium apartments from Bukit Batok blk 288/289 (atrium block) composed by Executive Apartment (144 sqm) and Executive Maisonette (165 sqm), EA have 3 balconies!

UNIQUE Executive Apartments from Pasir Ris donut block and Bukit Panjang

UNIQUE, HDB Penthouse Maisonettes
They are located in topmost floor of some 1980s and 1990s precincts in Bishan (52 units, up to 199 sqm), Choa Chu Kang (12 units, 182 / 215 sqm), Queenstown-Strathmore (4 units, 192 sqm), (source), Hougang (unknown number of units, 176 sqm), Pasir Ris blk 252-257 (6 units, 189 sqm) and Tampines blocks 143-147).

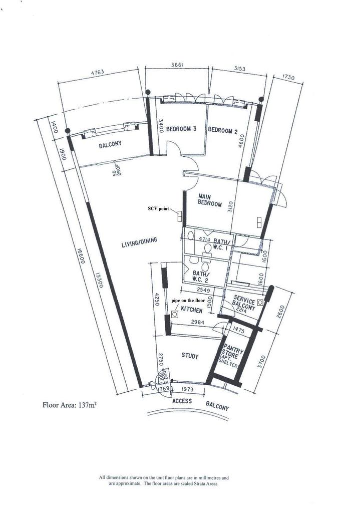
Premium: Sembawang Blue Riverview (2001) with 4-Room (102 sqm), 5-Room (115 / 118 sqm), and Executive (137 sqm)

Nice-shpaed 5-room apartment with central living room, allow 4 spacious bedrooms (unlike other 5-room from similar period having 3 bedrooms and larger living room). From Toa Payoh block 122.

