Beside HDB, Jurong Town Corporation (established in 1968) built 5 estates:
Taman Jurong, built 1964/1969-1974, most demolished in 1990s and 2000s). Earliest blocks were built by Economic Development Board in cooperation with HDB starting from 1964, then JTC took over in 1969.
Boon Lay Gardens, built 1974-1978, mixed with HDB, most demolished in 1990s and 2000s.
Teban Gardens, built 1977-1978, mixed with HDB, some demolished in 2000s.
Pandan Gardens, built 1978-1979, all survived.
Sembawang, built early 1970s, 7 blocks, demolished in 2004.
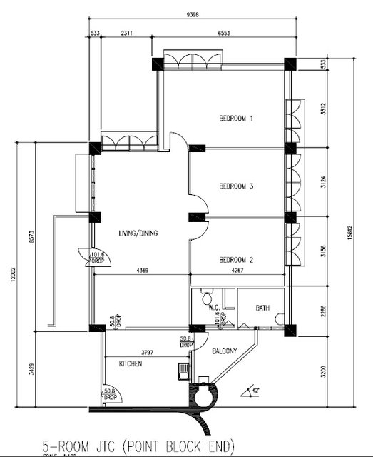
The 5-Room flats built by JTC feature 2 entrance doors!
HDB took over the management of JTC and HUDC flats in 1982, thus became the sole provider of public housing in Singapore.





